会津若松市八日町60-4
2022年11月19日(土)〜12月28日(水)9:00~16:00【完全予約制】
※事前予約が必要ですので予約ページからお申し込みください。

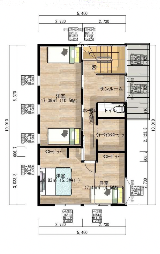
3LDK +シューズクローゼット +ウォークインクローゼット +ランドリールーム(32.31坪)
AOSHIMAのホットとする家 Joy・Kos住宅システム
- 住まいで時短テキパキ導線
- 省エネ住宅でローンの金利もお得!!
- 音声・スマートフォンで操作可能なスマートハウス
- 将来を見据えた間取り
Joy・Kos 省エネ・高性能住宅見学会
生活動線と暮らしやすさを追求した未来型住宅

建物仕様概要
| 建坪(平米) | 32.31坪 | 敷地面積 | 59.47坪 |
|---|---|---|---|
| 工法 | JOYKOS | 間取り | 3LDK+シューズクローゼット+パントリー+ウォークインクローゼット+ランドリールーム |
| Ua値 | 0.38 |
補助金
地域型グリーン化事業:長期優良認定住宅 130万円
こどもみらい住宅支援事業:ZEH等省エネ住宅で最大100万円の補助金
グリーン住宅ポイント:リフォーム・新築で商品と交換または追加工事金
お客様の快適な暮らしにこだわる
完全自由設計の家づくり
「設計&デザイン」のこだわり
ZEH住宅も可能な
超高気密・高断熱住宅
Joykos(ジョイコス)

ジョイ・コス住宅は炭化コルクと硬質ウレタンフォームを一体化した高性能の複合断熱パネルを使用し、北海道基準の断熱性能を実現。人にも環境にも優しい快適な住まいをご提供できます。会津の風土を熟知したAOSHIMAがおすすめする超高気密・高断熱ジョイ・コス住宅です。
自由設計だからこそできる住まいのご提案
高性能住宅だからこそできる未来を見据えた住まいを実現します
AOSHIMA
コンセプトハウス見学会
ご予約受付中
2022年11月19日(土)〜12月28日(水)9:00〜16:00
家づくりで不安なことや、相談してみたい事などありましたら、是非この機会にどうぞ。
1時間に1組様の完全予約制となります。お電話またはお問合わせフォームから事前にご予約をお願いいたします
会場マップ
福島県会津若松市八日町60-4





